Prodej - dům/vila, 104 m²
Prodej rodinného domu, 104 m², Svatkovice, Bernartice
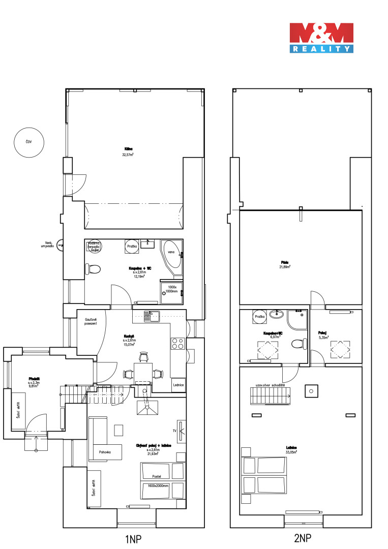
Nabízíme k prodeji zrekonstruovaný patrový rodinný dům v klidné části obce Svatkovice u Bernartic. Tento slunný dům je ideální pro rodiny hledající komfort a klid. Dispozice 2+1 s další malou místností, v každém NP je koupelna s WC, obytná plocha je 104 m². Dům je vytápěný krbovými kamny s výměníkem a rozvodem do radiátorů. K domu náleží okrasná slunná zahrada o rozloze 511 m² s altánkem, ideální pro relaxaci. Voda je zajištěna z vlastní studny, odpad přes domácí ČOV, v obci je naplánovaná výstavba veřejného vodovodu. Energetická náročnost zatepleného domu je třídy B a zaručuje nízké provozní náklady. Možnost rozšíření o další pokoje v obou podlažích, na vyžádání poskytneme 3D vizualizaci s návrhem změny dispozice. Celková plocha pozemku činí 690 m². Nepropásněte tuto jedinečnou příležitost bydlení v klidné obci Svatkovice.


