Prodej - dům/vila, 128 m²
Prodej domu 128 m², pozemek 511 m²
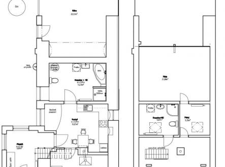
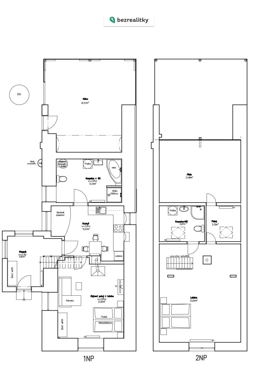
Nabízím k prodeji krásný zateplený kamenný dům v osobním vlastnictví, 20km od Písku, který se vyznačuje skvělou orientací na slunnou okrasnou zahradu s altánkem a komfortně zařízený byt s novou půdní vestavbou. Dům má dispozici 2+1 (třetí pokoj malý), obytná plocha 104m2 s dvěma koupelnami s WC a je ve velmi dobrém stavu. Dům je zateplen a vybaven. Vše to, co je vidět na fotografiích. Je k dispozici i nový interiérový návrh, který ještě více propojí bydlení se zahradou a změní nemovitost zcela v nadčasovou. Několik fotografií v náhledu. Rozloha domu činí 128 m², přičemž se nemovitost pyšní i pozemkem o rozloze 511 m², který poskytuje dostatek prostoru pro zahradní aktivity či další možnosti využití. Provozní stránku zvyšuje možnost parkování přímo před domem, ale pohodlně si lze najet autem velkou bránou z ulice na nádherně zatravněnou plochu. Energetický štítek budovy s označením B svědčí o její efektivní a úsporné provozní náročnosti. V nemovitosti najdete kvalitní řešení, která spojují historický charakter kamenné stavby s moderními standardy bydlení. Vytápění je krbovými kamny na dřevo s výměníkem v prostoru obývací části. Nejenom, že rozvede teplo po celém domě, ale přes velké sklo kamen vytvoří příjemnou atmosféru, ideální pro posezení. Elektrická energie - E.ON. Dále je dům napojen na vodu ze studny a již nyní obec oznámila budoucí napojení na veřejný vodovod. Odpadní voda je odvedena do ČOV na pozemku. Okna plastová s izolačním dvojsklem, zateplení celého pláště budovy 10cm minerální vaty, 2 střešní okna. Dům má obrovský potenciál, lze rozšířit o další přízemní i půdní pokoje (64m2). Ve 3D vizualizaci se změnou dispozice, se obývací část s kuchyní, krbem a jídelnou, přesouvá do výhodnější polohy pro ještě lepší propojení se zahradou a polohou altánku se zděným krbem. Neskutečně vzdušně na Vás bude působit posezení na centrální pohovce nad kterou je otevřený strop až do krovu. Dlouhé zasklení a pozice oken bude se světelnou atmosférou podtrhovat výhled na upravenou zahradu v plném Vašem soukromí, kam sousedé nevidí. Rozměry altánku jsou 6,5x3,6m, takže velice prostorný i třeba pro zaparkování auta nebo motorky. Výborná dostupnost do Písku, Bechyně, Tábora, Českých Budějovic. Zastávka autobusu v obci. Tato nemovitost je určena výhradně přímým zájemcům o koupi. Na inzerát můžete také reagovat přímo na webu Bezrealitky.


