Prodej - chata/rekreační objekt, 130 m²
Chalupa s potenciálem k bydlení i rekreaci, Bernartice, okr. Trutnov
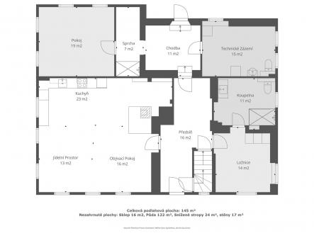
Nabízíme k prodeji útulnou chalupu v malebné obci Bernartice, která se nachází jen 30 minut od Pece pod Sněžkou – ideální místo pro klidné bydlení nebo rekreaci v podhůří Krkonoš. Na pozemku o celkové výměře 794 m² stojí dům se zastavěnou plochou 244 m². O celkové podlahové ploše 145 m2 V přízemí se nachází obytná část připravená k okamžitému užívání, v patře je prostorný otevřený prostor, který lze snadno upravit pro další obytné místnosti nebo samostatnou jednotku. K domu náleží zahrada s dostatkem soukromí a krásným výhledem do okolní přírody. Nemovitost nabízí výborný poměr mezi klidným venkovským prostředím a dobrou dostupností horských středisek i městské infrastruktury. Skvělá příležitost pro ty, kdo hledají místo pro rekreaci, trvalé bydlení nebo investici v atraktivní lokalitě pod Krkonošemi. V případě Vašeho zájmu prosím kontaktujte makléřku.


