Pronájem bytu, 3+kk, 68 m²
Pronájem částečně zařízeného 3+kk/T, park. stání, 75,7 m2, novostavba, Benešov, ul. Křižíkova
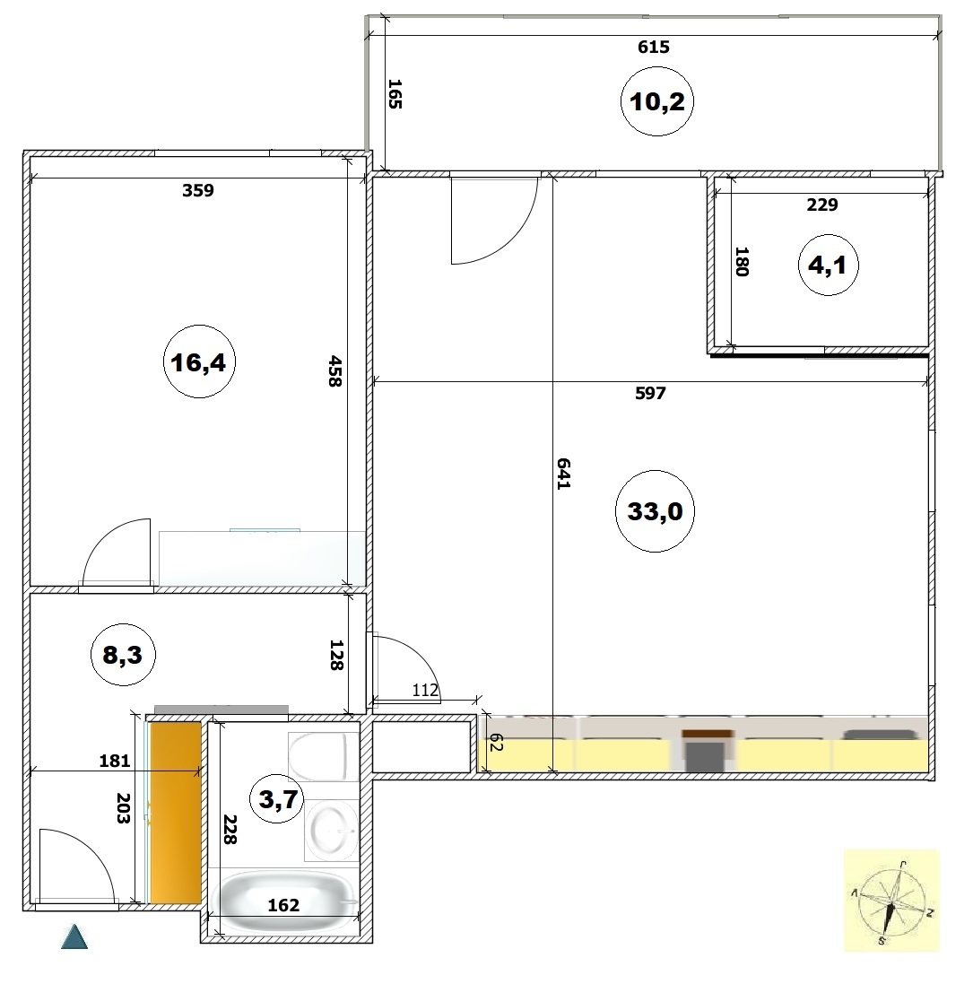
Nově uvolněno! K dispozici od 22.12.2025. Nabízíme k pronájmu krásný, velmi světlý a dobře dispozičně vyřešený byt v novostavbě (kolaudace 2010), Benešov, ul. Křižíkova. Zámecký park Konopiště 900 m od domu! Velká terasa (10,2m2) s pergolou na jižní stranu. Parkovací stání se zamykací parkovací zábranou přímo u vchodu do domu. Absolutní klid a výborná dostupnost do Prahy (20 min. autem a 35 min. vlakem). Byt 3+kk, 65,5 m2, terasa 10,2 m2 a sklep 2 m2, 2. patro ze 3. Velký obývací pokoj se čtyřmi okny a vstupem na terasu. Částečně zařízený nábytkem - viz foto. Kuchyňská linka se sklokeramickou deskou, horkovzdušnou troubou, myčkou, digestoří a lednicí s mrazákem + místem pro pračku. Dvě vestavěné v předsíni a ložnici. Na podlahách dlažba a plovoucí laminát. Vytápění ÚT s digitálními měřiči. Koupelna s vanou a s WC. Orientace oken J a Z. K bytu náleží zděný sklep s plnými dveřmi – 2 m2. Kabelová televize a internet UPC (Vodafone). K dispozici kolárna x kočárkárna. Veškerá občanská vybavenost v místě (MŠ, ZŠ, obchody, restaurace, nemocnice, golfové hřiště, fotbalový a hokejový stadion). Cena: 20.000,-Kč + zálohy na služby 3.900,-Kč/3os. + elektřina cca 1.500,-Kč/měs. Vratná kauce 25.000,-Kč, provize pro RK 20.000,-Kč + 21%DPH. K dispozici od 22.12.2025.


