Pronájem bytu, 3+kk, 62 m²
Pronájem bytu 62 m2, ul. Křižíkova, Benešov u Prahy
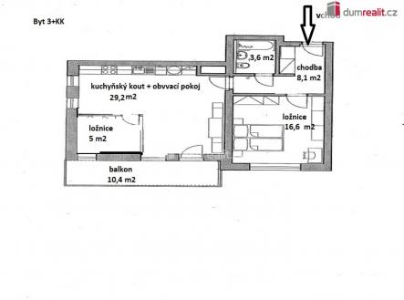
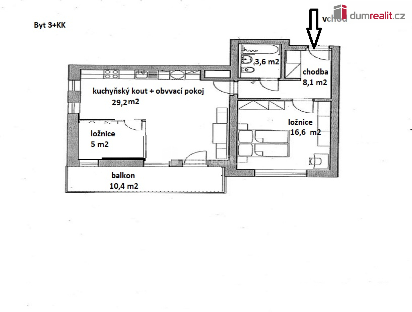
Naše společnost Vám zprostředkuje pronájem bytu 3 + KK, 62 m² +10 m² balkón, v ul. Křižíkova, v Benešově. Bytová jednotka se nachází v cihlovém domě z r. 20210, v 2.NP. Dispozice: ze vstupní chodby je samostatný vstup do ložnice s vestavěnou skříní, koupelny osazené vanou, umyvadlem a WC, dále do obývacího pokoje s kuchyňským koutem se spotřebiči (el. varná deska, el. trouba, digestoř). Z této centrální části bytu je vstup do maličké ložnice a na balkón. Součástí pronájmu je koje (cca 2 m²) a nekryté parkovací stání pro jeden automobil před domem. Měsíční nájemné činí15.000 Kč + 4.213 Kč poplatky. Zálohy na spotřebu elektrické energie si nájemce převede u dodavatele na sebe. Vratná kauce činí 30.000 Kč. Při podpisu nájemní smlouvy je třeba uhradit odměnu RK ve výši jednoho nájemného. Byt bude připravený k pronájmu od 2/2026. Lokalita je klidná, v okolí bytové domy, 10 min. pěší chůze na nádraží BUS, vlak. Benešov poskytuje plnou občanskou vybavenost. Pro více informací, volejte na uvedené telefonní číslo. Ráda Vám byt osobně představím. Ev. číslo: 650275.


