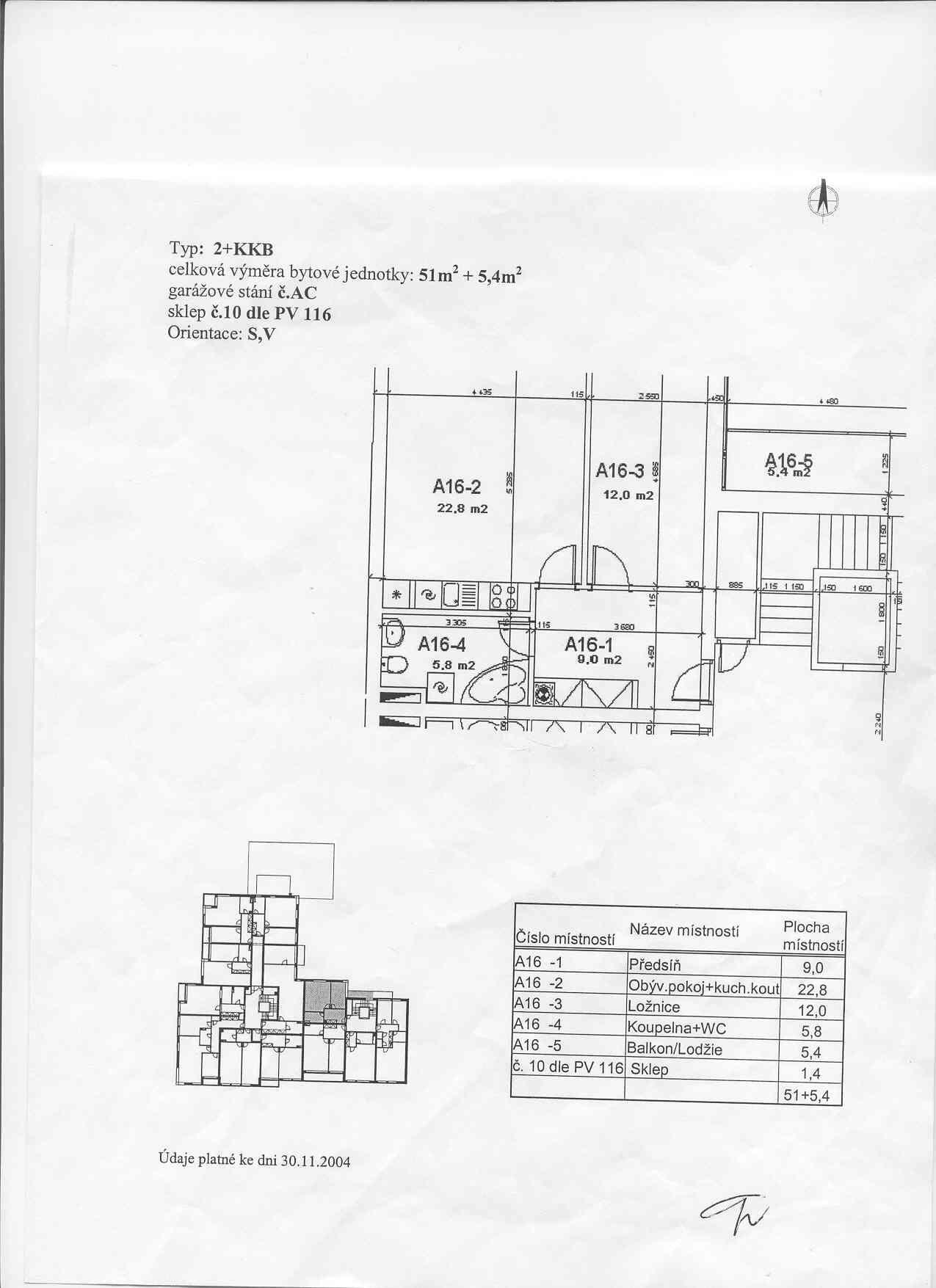
Pronájem bytu, 2+kk, 51 m²
Byt 2+kk/B, Benešov, ul. Jiráskova
nabízíme k dlouhodobému pronájmu nezařízený byt 2+kk s balkonem a sklepem v ul. Jiráskova v Benešově, kousek od náměstí. Byt o ploše 51 m2 s balkonem 5 m2 je ve 4. patře domu z roku 2007 s výtahem. Z prostorné předsíně je samostatně vstup jak do obývacího pokoje s kuchyňským koutem, tak do ložnice a koupelny. Kuchyň je vybavena el. sporákem s troubou a myčkou, velká koupelna s vanou. Možnost internetu. K bytu patří sklep. Velice dobrá lokalita kousek od náměstí. Poplatky jsou včetně záloh na energie. Volné od 1.3.2026.


