Prodej - chata/rekreační objekt, 295 m²
Prodej, luxusní usedlost 295 m2, pozemek 3066 m2, Benešov nad Černou
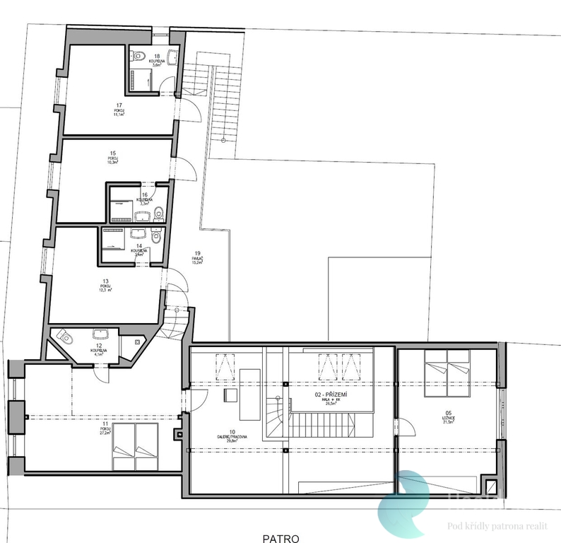
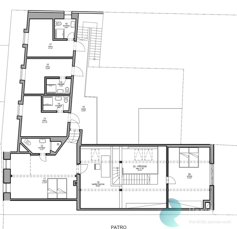
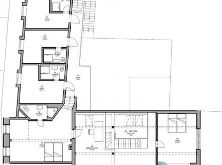
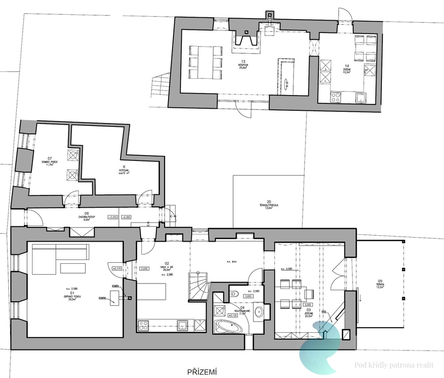
Luxusní usedlost u říčky – výjimečné bydlení s investičním potenciálem Jedinečná luxusní chalupa v Benešově nad Černou vás doslova pohltí svou atmosférou, prostorem i energií. Na břehu říčky Černé, obklopená klidem Novohradských hor, stojí usedlost, která spojuje kouzlo přírody s pohodlím moderního života. Na rozlehlém pozemku o velikosti 3 066 m² najdete pečlivě udržovanou zahradu s vyhřívaným bazénem, pergolou s venkovní kuchyní a grilem i množstvím romantických zákoutí pro chvíle odpočinku. Usedlost tvoří dva samostatné domy, které mohou fungovat nezávisle nebo jako jeden celek. Hlavní obytná část o rozloze 197 m² je jako stvořená pro velkou rodinu, která hledá komfort, prostor a klid, a přitom nechce slevit z nároků na kvalitu a styl. Druhý dům (97,5 m²) slouží dnes jako zavedený penzion s kapacitou 7 lůžek, stylovou společenskou místností s krbem, výčepem a kuchyňkou. Tento dům však nabízí i skvělou možnost částečného pronájmu, rekreačního ubytování či využití pro podnikání – ideální pro ty, kdo chtějí spojit životní komfort s chytrou investicí. Ať už se rozhodnete využívat celý objekt pro vlastní bydlení, nebo část ponecháte pro komerční účely, získáte nemovitost s obrovským potenciálem. Dům prošel kompletní rekonstrukcí v letech 2004–2019, která citlivě zachovala původní charakter a zároveň přinesla vysoký technický standard – měděné rozvody, kvalitní dřevěná okna i dveře, nové střechy, zateplení a pečlivě vybrané materiály. Vytápění zajišťuje moderní kotel na tuhá paliva se zásobníkem, doplněný krby pro vytvoření kouzelné atmosféry. Ačkoli leží usedlost přímo u říčky, není ohrožena záplavami – díky profesionálně provedeným protipovodňovým opatřením a vhodnému terénnímu řešení je objekt zcela bezpečný a plně pojistitelný i proti povodni. Tato usedlost je neopakovatelnou příležitostí pro ty, kdo hledají výjimečné bydlení v srdci přírody, které může zároveň vydělávat. Kombinuje luxus, prostor a naprostý klid s možností podnikatelského využití – a to vše v jedné z nejmalebnějších lokalit Jižních Čech.

