Prodej bytu, 3+1, 69 m²
Byt 3+1, 69 m2 - Benátky nad Jizerou, Ořechová
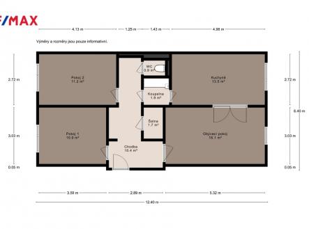
---------- REZERVOVÁNO ---------- Pokud hledáte prostorný a světlý byt v Benátkách nad Jizerou, který si můžete upravit přesně podle svých představ, pak vás tato nabídka jistě zaujme. Byt o podlahové ploše 69 m2 se nachází v ulici Ořechová, ve 4. nadzemním podlaží pětipodlažního panelového domu (bez výtahu), který je ve výborném a pravidelně udržovaném stavu. Dispozice zahrnuje prostorný obývací pokoj s kuchyňským koutem (30 m2), dva pokoje (každý o velikosti 11 m2), koupelnu, samostatnou toaletu, velkorysou vstupní chodbu s možností vestavěných skříní a praktickou komoru. K bytu dále náleží druhá komora na chodbě přímo naproti bytu, sklepní kóje v přízemí a uzamykatelná lodžie na patře, sdílená jen se sousedním bytem. Obyvatelé mohou dále využívat společnou kolárnu a kočárkárnu. Parkování je možné pohodlně přímo před domem. Byt je v původním, udržovaném stavu a připravený k rekonstrukci. Měsíční zálohy včetně vytápění, fondu oprav, vody a správy domu činí 4 400 Kč. Elektřina pak vychází na zhruba 1 500 Kč. Budova má energetický štítek ve třídě D. Benátky nad Jizerou patří mezi oblíbené rezidenční lokality díky klidné atmosféře, množství zeleně a ideálním podmínkám pro rodinné bydlení. Město s přibližně 8 000 obyvateli nabízí kompletní občanskou vybavenost – mateřské, základní i umělecké školy, sportovní areály a kluby (např. fotbal, tenis, hokej, florbal, badminton, volejbal), dětská hřiště, restaurace i supermarkety Billa, Penny a Lidl. Milovníci volnočasových aktivit ocení množství cyklostezek, turistických a naučných tras, stejně jako místní muzea, zámek či hvězdárnu. Skvělou dopravní dostupnost zajišťuje autobusové nádraží vzdálené jen 200 metrů od domu – s přímým spojením do Prahy na metro B – Černý Most (30 minut) nebo do Mladé Boleslavi (28 minut). Autem se během pěti minut napojíte na dálnici D10. Pokud vás tato nabídka zaujala, neváhejte mě kontaktovat. Rád vám byt ukáži osobně. Vojtěch Piruchta Prodávající si vyhrazuje právo vybrat kupujícího na základě jím zvolených kritérií.


