Prodej - komerční objekt, sklad, 214 m²
Prodej rodinného domu 214 m², Bělov
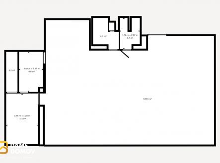
V obci Bělov, opravdu pár minut od Otrokovic, nabízíme k prodeji zajímavý objekt s bohatou historií – bývalou Bělovskou hospodu, dnes upravenou na dům s prostory pro uskladnění aut, nebo motorek a se zázemím. Nemovitost je v dobrém technickém stavu a je napojena na elektřinu, obecní vodovod i kanalizaci. Dominantou je hlavní místnost – „sál“ – s vjezdem přes elektricky ovládaná vrata kde uskladníte až 15 aut nebo mnoho motocyklů. Dále je zde kancelář, kuchyňka, sociální zázemí (toalety, sprcha) a sklep. Bočním průchodem se dostanete na zadní dvorek, včetně úložného prostoru a vstupu na půdu, která nabízí možnost rozšíření obytné či užitné části. Současné využití objektu je ideální pro sběratele, nadšence do automobilů a motorek, nebo pro více vlastníků, kteří potřebují bezpečné a kryté parkování. Díky dispozici a poloze se po jednoduché úpravě nabízí i široké spektrum dalších možností pro Vaše potřeby. Rodinný dům pro bydlení, nebo pronájem, kombinace bydlení a podnikání, dílna, sklad, případně jiné činnosti pro veřejnost, nebo svou potřebu. Bělov má základní občanskou vybavenost a výborné spojení – do Otrokovic pár minut, do Zlína cca 15 minut, rychlý nájezd na dálnici D55 směr Uherské Hradiště či Brno. Okolní příroda je ideální pro procházky a cyklovýlety. Pokud Vás tato nabídka zaujala, neváhejte nás kontaktovat pro bližší informace k objektu, nebo domluvení prohlídky.


