Prodej - dům/vila, 125 m²
Novostavba v Hvožďanech u Bechyně
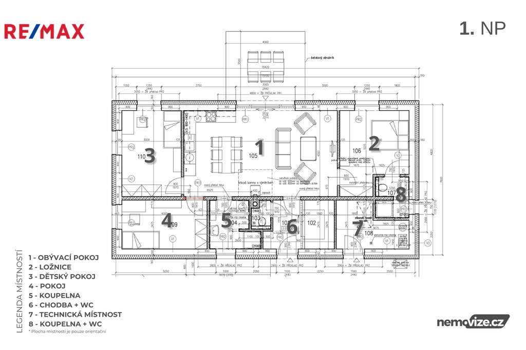
Nově vám k prodeji nabízíme hrubou stavbu rodinného domu, situovanou na klidném okraji obce Hvožďany u Bechyně. Tato malebná jihočeská lokalita nabízí ideální prostředí pro život v přírodě, a zároveň dostupnost do lázeňského města Bechyně, kde naleznete veškerou občanskou vybavenost. Okolní krajina láká k procházkám, cyklovýletům i relaxaci v srdci přírody. Nabízený dům je postaven na upraveném, zarovnaném pozemku o velikosti 762 m². Jedná se o kvalitní hrubou stavbu se zhotovenou střešní krytinou, napojenou na obecní vodovod, elektřinu a s vlastní čističkou odpadních vod. Dům je ideální volbou pro ty, kteří hledají možnost dotvořit si svůj domov podle vlastních představ a potřeb. Odhadované náklady na dokončení se pohybují okolo 2,5 milionu korun a rádi vám zajistíme veškerou součinnost při dostavbě. Jedná se o samostatný prodej jednoho domu, avšak v těsné blízkosti se nachází ještě druhý, téměř identický dům. Pokud by vás zajímala i tato varianta, neváhejte se na nás obrátit – rádi vám poskytneme více informací. Těšíme se na vás osobně…


