Prodej - dům/vila, 100 m²
Rodinný dům 3+1, Babice, pozemek 286 m2
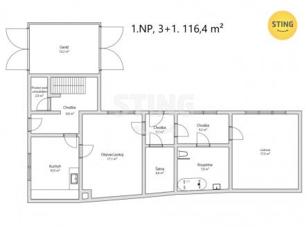
AKTUALIZACE CENY !!! Nabízíme ke koupi rodinný dům v obci s vynikající občanskou vybaveností a přístupem k dálnici směr Zlín-Hodonín . Nemovitost se nachází v klidné části obce. Jedná se o samostatně stojící dům v řadové rodinné zástavbě. V přízemí je vstupní chodba, kuchyně s jídelním prostorem, obývací pokoj, vstup na dvůr, koupelna s WC, prostorná komora a ložnice. V I. NP je menší chodba a prostorný dětský pokoj. Ve dvorní části je možnost zhotovit si posezení či umístit menší bazén. Parkovat lze v průjezdné garáži. Dům je určen ke kompletní rekonstrukci, což nabízí skvělou příležitost přizpůsobit si bydlení přesně podle vlastních představ. Hlavní výhody nemovitosti: napojení na všechny IS, vhodné pro příjemné nejen rodinné bydlení. Výborná dostupnost do Zlína. Do konce prosince 2025 nabízíme prostřednictvím našeho partnera úrokové sazby od 4,29 % p.a. Více informací Vám sdělí náš specialista na prohlídce.


