Prodej bytu, 3+kk, 67 m²
Prodej horský apartmán, novostavba, byt 3kk na horách 75, m2 z toho lodžie 7,4 m2, výhled , sauna, v
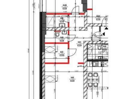
Nový horský apartmánový dům na úžasném místě s výhledem do údolí Špičáku. Výjimečná lokalita v čisté přírodě CHKO na Mariánské Hoře v Albrechticích v Jizerských horách nabízí byt 3+kk o velikosti 67 m² s lodžií 7,4 m² ve druhém nadzemním podlaží. Praktický horský apartmán s krásným výhledem má ideální polohu pro zimní radovánky, klidnou relaxaci a sportovní aktivity po celý rok. Běžkařská stopa Jizerské magistrály je vzdálena jen 450 m, lyžařský vlek pouhé 2 minuty autem, a navíc jste zde na perfektním místě pro cyklotrasy a turistické výlety po Jizerských horách. Pocit blízkosti přírody se tu snoubí s pohodlnou dostupností centra Albrechtic i ski areálu Tanvaldský Špičák. Apartmán nabízí prostorný, světlý obývací pokoj s plynulým přechodem do romantické lodžie s výhledem do údolí, jídelní kout, dvě samostatné ložnice, koupelnu, samostatné WC a praktické prostory v chodbách připravené pro vestavěné skříně a technické zázemí bytu. K dispozici je parkovací stání u domu a sklepní kóje pro uložení lyží nebo kol. Dům je po kolaudaci, apartmán je připraven k finálnímu zařízení interiéru, v okolí domu se aktuálně připravují venkovní úpravy. V domě najdete saunu, venkovní bazén, rodinnou atmosféru a příjemné sousedy, což přispívá ke komfortnímu bydlení. Vytápění i ohřev teplé vody tepelným čerpadlem. Obec disponuje kompletní občanskou vybaveností. Skiareál Tanvaldský Špičák je vzdálen pouhé 2 minuty jízdy autem, stopa Jizerské magistrály 450 m, Harrachov 15 min., Severák 6 min., Ještěd 30 min. nebo golfová hřiště Ypsilonka, Malevil a Liberec jsou snadno dostupná autem. Pro více informací nás neváhejte kontaktovat.


